土地 八尾市堤町3丁目
所在地
八尾市堤町3丁目
1,250万円
22.79坪
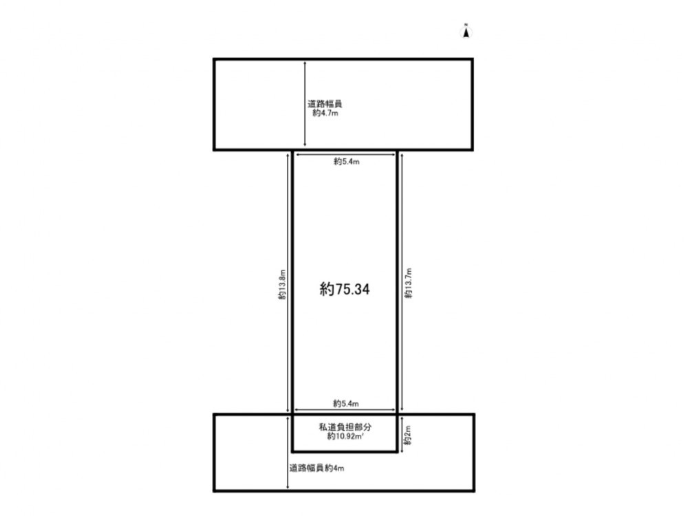
南北両面が道路に接しています。
・セブン-イレブン 八尾西山本6丁目店まで徒歩9分(約650m)
・関西スーパー旭ヶ丘店まで徒歩11分(約800m)
・ドラッグセガミ 旭ヶ丘店まで徒歩10分(約750m)
・東朋八尾病院まで徒歩22分(約1600m)
・八尾北本町郵便局まで徒歩24分(約1700m)
物件概要
- 交通
-
近鉄大阪線 河内山本駅 まで 徒歩18分
- 接道状況
-
南側 私道4m 間口約5.4m
北側 公道4.7m 間口約5.4m - 土地面積
- 75.34㎡ (22.79坪)
- 建ぺい率
- 60%
- 容積率
- 188%
- 土地権利
- 所有権
- セットバック
- 無し
- 小学校区
- 山本 ( 290m )
- 中学校区
- 上之島 ( 1200m )
- 私道負担
- あり 有 10.92
- 建築条件
- ー
- 地目
- 宅地
- 現況
- 上物有
- 引渡時期
- 即時
- 上水道
- 公共
- 下水道
- 公共
- ガス
- 都市ガス
- 都市計画
- 市街化区域
- 用途地域
- 1種中高
- 設備・条件
- 側溝
- 備考
- 取引態様
- 仲介



